VIVIENDA DE OBRA NUEVA CON PISCINA EN LA MOLA – FORMENTERA V214
Descripción
Villa de Obra Nueva en La Mola – Arquitectura, Luz y Elegancia Atemporal
Propiedad de obra nueva concebida para integrarse de manera natural en el paisaje singular de La Mola, respetando los códigos arquitectónicos tradicionales de Formentera y reinterpretándolos desde una estética contemporánea, sobria y atemporal.
Una vivienda donde la calidad constructiva, la luz natural y la proporción de los espacios marcan una clara diferencia.
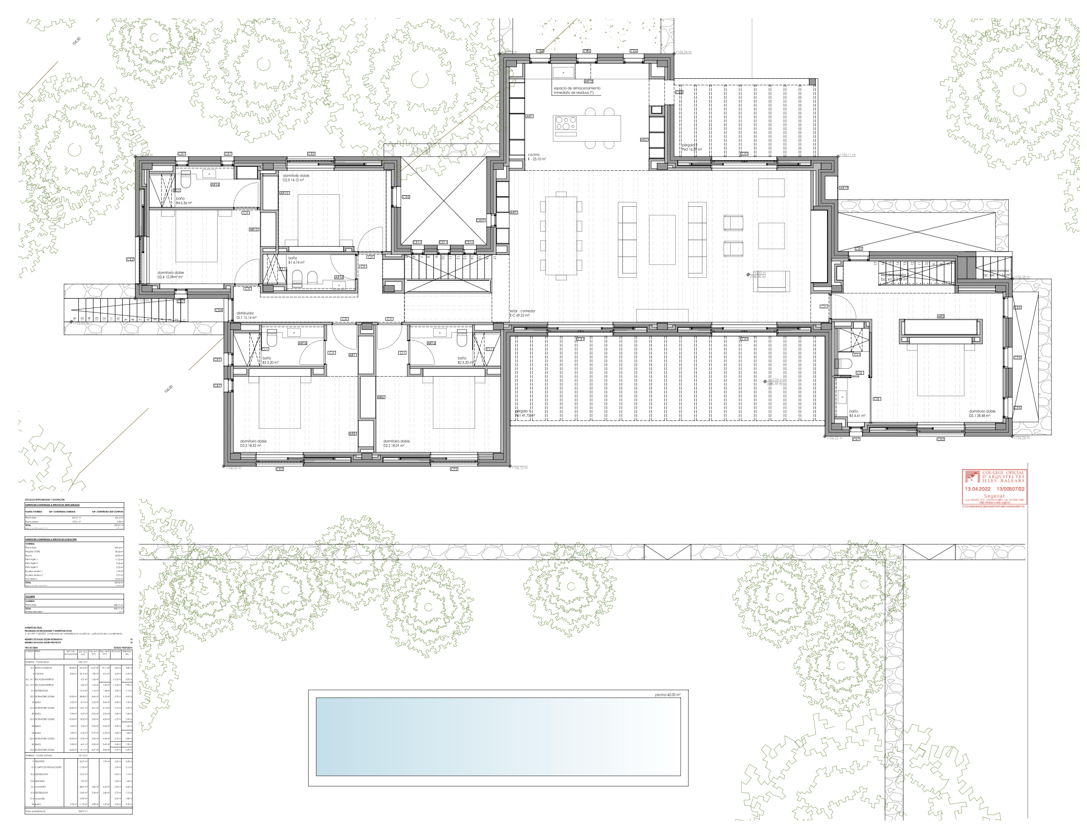
INTERIORES
-
5 dormitorios, todos con baño en suite
-
Amplia zona central que integra comedor, salón principal, segundo salón y chimenea
-
Cocina abierta conectada al espacio principal
-
Alturas de techo de 3 metros que aportan amplitud y luminosidad
-
Dormitorio principal con baño en suite, vestidor y gran baño adicional con luz natural mediante patio inglés
-
Distribuciones interiores fluidas, racionales y funcionales
EXTERIORES
-
Piscina espejo desbordante de 42 m², de diseño alargado y estilizado
-
Espacios exteriores integrados con la arquitectura de la vivienda
-
Patio inglés que aporta luz, privacidad y carácter al área principal del dormitorio master
DETALLES ARQUITECTÓNICOS
-
Arquitectura cúbica balear de líneas suavizadas, sin aristas agresivas
-
Minimalismo cuidado presente en toda la vivienda
-
Contraventanas correderas exteriores empotradas en los muros
-
Puertas correderas en baños y puertas interiores enrasadas
-
Carpintería interior y exterior íntegramente en madera de iroko: vigas vistas, puertas, armarios, ventanas y pérgolas
CALIDADES E INSTALACIONES
-
Alta calidad constructiva en muros y pavimentos
-
Instalaciones simplificadas y centralizadas en sala técnica
-
Paneles solares de baja inclinación, agrupados y no visibles en cubierta
-
Enfoque eficiente, limpio y coherente con la arquitectura
UBICACIÓN
-
La Mola, Formentera
-
Entorno natural protegido y tranquilo
-
Zona de alta privacidad y fuerte identidad paisajística
-
Equilibrio excepcional entre aislamiento, autenticidad y calidad de vida
Availability
| L | M | X | J | V | S | D |
|---|---|---|---|---|---|---|
| 1 | ||||||
| 2 | 3 | 4 | 5 | 6 | 7 | 8 |
| 9 | 10 | 11 | 12 | 13 | 14 | 15 |
| 16 | 17 | 18 | 19 | 20 | 21 | 22 |
| 23 | 24 | 25 | 26 | 27 | 28 | 29 |
| 30 | 31 | |||||
| L | M | X | J | V | S | D |
|---|---|---|---|---|---|---|
| 1 | 2 | 3 | 4 | 5 | ||
| 6 | 7 | 8 | 9 | 10 | 11 | 12 |
| 13 | 14 | 15 | 16 | 17 | 18 | 19 |
| 20 | 21 | 22 | 23 | 24 | 25 | 26 |
| 27 | 28 | 29 | 30 | |||







































